Westin Building Exchange

Inside the WBX, 2001 6th Avenue, Seattle

Westin Building Exchange exterior, downtown Seattle

The Building

The Westin Building Exchange is one of the most connected buildings in North America. Originally built in 1981 and converted to a carrier hotel, over 70% of its 34 floors are now dedicated to telecommunications and data center operations.

It serves as the Pacific Northwest's primary interconnection point. More than 250 carriers, ISPs, cloud providers, and CDNs operate from this building, making it the densest network hub between San Francisco and Vancouver.

The 19th floor houses a pair of Meet-Me Rooms where carriers cross-connect their networks - nearly 40,000 cross connects run through this building.

Westin Building Exchange telecom nerve center

Telecom Nerve Center

This is where the connections happen. Dense fiber runs, patch panels, and cross-connects link hundreds of networks together. Traffic that would otherwise traverse multiple providers and add latency instead takes a direct path through the exchange.

For your workload, that means fewer hops, lower latency, and more predictable performance. When your server peers directly with Google, Amazon, Cloudflare, and hundreds of regional ISPs, your users notice the difference.

Westin Building Exchange Meet-Me Room

Meet-Me Rooms

The 19th floor Meet-Me Rooms are where carriers physically interconnect. This is the literal junction point of the Pacific Northwest's internet infrastructure.

Having your server in the same building as the MMR means your traffic doesn't leave the building to reach major networks. That's a real, measurable advantage you can't get from a suburban warehouse datacenter.

Westin Building Exchange dual 500 KVA UPS distribution system

Power Infrastructure

The facility runs dual 500 KVA UPS systems in 2N redundancy. 17 diesel generators provide 19.5 MW of backup power capacity with 48+ hours of on-site fuel.

Critical loads get 2N power distribution - two completely independent power paths so a failure in one doesn't take anything down. This is the same level of redundancy that major cloud providers require for their own infrastructure.

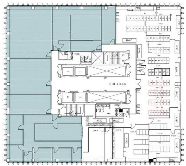
Westin Building Exchange 8th floor data center layout

Data Floor Layout

Purpose-built data floors with hot/cold aisle containment, raised flooring for cable management, and precision cooling. N+1 redundant CRAC units maintain consistent temperature and humidity.

Seattle's mild maritime climate gives us a natural advantage for cooling efficiency - we spend less energy fighting heat, which means more reliable operations and lower costs that we pass on to you.

Network

SIX-connected upstream and multi-homed transit for fast, reliable connectivity.

Latency from Seattle

Seattle Metro <1ms
Portland ~5ms
San Francisco ~18ms
Los Angeles ~28ms
Vancouver BC ~4ms
Tokyo ~68ms

Multi-Homed Transit

Our upstream uses multiple Tier 1 and Tier 2 transit providers with automatic failover. No single upstream dependency means resilient routing for your services.

SIX-Connected Routing

Connected to the Seattle Internet Exchange with 250+ networks reachable via our SIX-connected upstream. Google, Amazon, Microsoft, Cloudflare and hundreds more.

Dual-Stack IP

Full IPv4 and IPv6 on all services. Dedicated IPv4 addresses and /64 IPv6 allocations included with every server.

Security & Compliance

Physical and operational security across the facility.

Physical Security

  • 24/7 on-site security personnel
  • Biometric access controls
  • Mantrap entry points
  • Full CCTV coverage
  • Audited access logging

Fire Protection

  • VESDA early warning detection
  • Clean agent suppression
  • Regular testing schedule
  • Zone-isolated systems

Compliance

The Westin Building Exchange facility maintains the following certifications:

  • SOC 2 Type II audited
  • ISO 27001 certified
  • PCI DSS ready infrastructure
  • HIPAA compliant environment
Westin Building Exchange lobby

Put Your Server Here

Deploy in one of the most connected buildings in North America. KVM VPS from $4.75/mo, LXC containers from $3.75/mo.

KVM Plans LXC Plans One-Click Apps